Dream. Build. Enjoy.
Reliable Home Constructions

Don't Wait for Your New Home to Appear Magically
At New Leaf Homes, you'll find a wide range of custom homes in a wide range of sizes. All you need to do is pick up your phone and schedule an appointment with us, so that we can do the hard work for you.
Call us to build your ideal home. 815-904-6006
Discuss your future home needs with our friendly staff. They will turn your future home to your present home!
Get a Brand New, Energy Efficient Home
1722 STD 2 Story
Click on Floor Plan for Larger Image
1722 sq ft living area
3 bedrooms
2.5 bath
Attached 3 car garage
Standard features:
Kitchen and greatroom with cathedral ceiling
Range, mircowave, and dishwasher
Hardwood cabinets and vanities
Main floor laundry
Finished flooring
Energy efficient
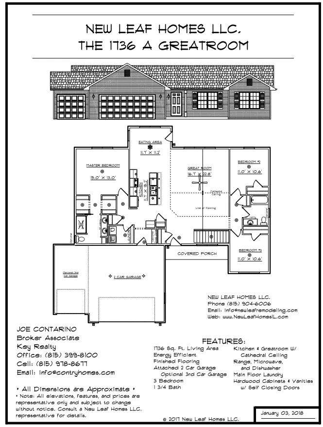
1736 A Greatroom
Click on Floor Plan for Larger Image
1510 sq ft living area
3 bedrooms
1 3/4 bath
Attached 3 car garage
Standard features:
Kitchen and greatroom with cathedral ceiling
Range, mircowave, and dishwasher
Hardwood cabinets and vanities
Main floor laundry
Finished flooring
Energy efficient
1767 A Greatroom
Click on Floor Plan for Larger Image
1767 sq ft living area
3 bedrooms
1 3/4 bath
Attached 2-car garage
Standard features:
Kitchen and greatroom with cathedral ceiling
Range, mircowave, and dishwasher
Hardwood cabinets and vanities
Main floor laundry
Finished flooring
Energy efficient
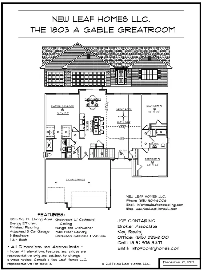
1803 A Gable Greatroom
Click on Floor Plan for Larger Image
1803 sq ft living area
3 bedrooms
2 baths
Attached 3-car garage
Optional fireplace
Standard features:
Greatroom with cathedral ceiling
Range and dishwasher
Main floor laundry
Hardwood cabinets and vanities
Finished flooring
Energy efficient
1815 Gable Greatroom
Click on Floor Plan for Larger Image
3 bedrooms
1 3/4 bath
Attached 2-car garage*
*Optional 3-car garage
Optional fireplace
Standard features:
Greatroom with cathedral ceiling
Formal dining room
Range and dishwasher
Hardwood cabinets and vanities
Main floor laundry
Finished flooring
Energy efficient














